简约一层平房自建房设计图,这几套户型实实在在,选一套建没压力
简约一层平房自建房设计图,这几套户型实实在在,选一套建没压力
在城里很难实现住上别墅梦,但是我们可以在农村自己建造一栋,找个漂亮的户型,花点钱,找个好施工师傅,就可以建造并且住上漂亮的农村别墅。说的大家都心动了,看看这三款简约一层平房自建房设计图,户型十分大气美观,赶紧选一套喜欢的建造吧。
款式一:农村一层平房设计图,中式三合院设计,带堂屋设计
图纸介绍:这款一层平房占地173平米左右,仿古中式三合院设计,带堂屋设计,外观白墙灰瓦、木制门窗的清雅与内敛,展现出了上下千年的文化传承,更是一种审美的?回归。浓浓的山水写意之美被建筑艺术包裹其中,淡雅的一砖一瓦间,带给人们无限的遐想。
占地面积:17.4m*15.5m,173平方米左右;
建筑层高:一层;
建筑高度:6.271米(含屋顶);
设计功能:
一层户型:堂屋、厨房、餐厅、卧室x6、卫生间x2、杂物间;


一层平房设计图
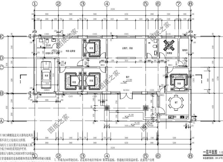
款式二:农村一层自建别墅设计图,占地260平米,大户型设计
图纸介绍:这款一层平房占地260平米左右,大户型设计,多卧室设计,和二层没有大的区别,所有的活动空间都在一层,还省去了上下楼梯的麻烦。
占地面积:25.2m*13.8m,260平方米左右;
建筑层高:一层;
建筑高度:8.9米(含屋顶);
设计功能:客厅、餐厅、厨房、会客厅、卧室×4、书房、衣帽间、卫生间、棋牌室、储物间、卫生间、车库;




一层平房设计图
款式三:农村一层别墅设计图,占地198平米,带堂屋设计
图纸介绍:这款一层别墅占地198平米,带堂屋设计,欧式风格,屋顶蓝色斜坡更显别致,老虎窗为点睛之笔。八角窗的设计,让整个建筑非常时尚又舒服。入户是堂屋设计,可摆放神位,非常适合农村生活习惯。客厅和餐厅通透明亮,通风采光极佳。4室二厅二卫的格局,基本满足农村三代同堂居住需求。
占地面积:18.76m*11.66m,198.41平方米左右;
建筑层高:一层;
建筑高度:6.34米(含屋顶);
设计功能:
一层户型:堂屋、客厅、娱乐区、厨房、餐厅、卧室(带衣帽间、卫生间)、卧室x3、卫生间x2;


一层平房设计图
不知道大家喜欢哪一款呢?欢迎下方评论留言。本文由图纸之家官网原创,欢迎关注,带你一起长知识!
-
- 桂林七天游攻略
-
2025-11-15 03:53:07
-
- 贵州飞利达科技股份有限公司拟对外投资设立全资子公司
-
2025-11-15 03:50:52
-
- 病娇男主的甜文:他男友力max心狠手辣,变态忠犬,占有欲十足
-
2025-11-15 03:48:37
-
- 他33岁出道拍戏,46岁患癌去世,一生只有一部戏,被网友悼念
-
2025-11-15 03:46:22
-
- 身材高挑,神仙颜值,享誉全球,俄罗斯超模3V时代代表
-
2025-11-14 12:17:40
-
- 世界四大家族:第4是日本皇室,沙特皇室只排第3,第1是孔子家族
-
2025-11-14 12:15:26
-
- 东夷西戎南蛮北狄(东夷是现在的哪里)
-
2025-11-14 12:13:10
-
- 上海已有7个区社会面基本清零(上海已有7个区社会面基本清零)
-
2025-11-14 12:10:55
-
- 桂林阳朔旅游攻略自由行(桂林阳朔旅行全攻略)
-
2025-11-14 12:08:40
-
- 上海徐汇区位置怎么样(不要错过徐汇区)
-
2025-11-14 12:06:25
-
- 东鹏特饮造富,林木勤家族先下筷?
-
2025-11-14 12:04:10
-
- 没有方向盘的特斯拉,百度有机会超越吗?
-
2025-11-14 12:01:55
-
- 乡村爱情14部现在播了吗(乡村爱情14部2025年在哪个台播放)
-
2025-11-13 22:07:00
-
- 雅典奥运会田径女子10000米跑金牌获得者,邢慧娜
-
2025-11-13 22:04:45
-
- 穿越两界的倒爷作者被判几年(据说还被判了八年有期徒刑)
-
2025-11-13 22:02:30
-
- 红色故事丨五四运动在漳州
-
2025-11-13 22:00:15
-
- 欧莱雅、百雀羚…化妆品大牌就“钟意”这个玻璃瓶
-
2025-11-13 21:58:00
-
- 血盟是什么(血盟和牢不可破咒的区别)
-
2025-11-13 21:55:45
-
- 这个春节会冷吗?网友们的最新预测来啦!
-
2025-11-13 21:53:30
-
- 泰版《来自星星的你》翻拍,男主角是帅帅的他~
-
2025-11-13 21:51:15



苍月奥特曼:来自宇宙的战士
字节跳动市值多少亿(字节跳动高估值的原因)