再现"地标" | 东海岸的“金沙”-终于开盘了
再现"地标" | 东海岸的“金沙”-终于开盘了
地标建筑地标建筑,是一个国家的名片和象征;
地标楼盘,则是更是一个区域的代表!
位于新加坡金融区的金沙酒店,
对于这座城市便有着无可替代的地位和价值 !

滨海湾金沙酒店
有多少人千里迢迢飞来新加坡,
就是想去金沙楼顶的无边泳池,
目睹一下绵延的城市天际线。
面朝大海,畅游一番。
假如你有一栋海边豪宅,
把别人的梦想活成了日常!
……

Amber Park (安珀园)
位于新加坡第15区的东海岸区(East Coast)
被誉为东海岸的“金沙公寓”
五月盛大开盘
东海岸-永久地契-地标大盘

新加坡东边的“金沙公寓“


CDL 的又一傲然力作
| 发展商
CDL(城市发展有限公司)一向以开发高端、高品质私人住宅而闻名。CDL享誉闻名的豪华公寓包括:Gramercy Park, New Futura,South Beach Residences, Boulevard 88等等。

在东海岸靠近市区,未来地铁附件的地段,永久土地已经非常稀有。而这一块占地高达213,676 平方英尺的优质海景土地是稀有中的稀有。 CDL也请来了新加坡最富盛名的设计师Soo K. Chan, ,一起打造东海岸的新地标!
| 设计师
Amber Park (安珀园)由国际知名设计师Soo K. Chan 设计,他曾获得多个奖项。包括首个新加坡总统设计奖。他创立的公司SCDA Architects荣获2016年度Sky Terrace @ Dawson 国际卓越奖RIBA奖 等等。
Soo K Chan参与设计的豪华公寓包括著名的豪宅 Leedon Residences, 新加坡乌节路附近曾今的楼王,单价超过新币6000psf的The Marq.


项目解析
地段优势-户型对比-投资潜力
地点:东海岸最核心位置,靠近金融区

| 地铁出行
距离加东公园地铁站(Katong Park MRT)越300米。可直接通往设在金融区未来的珊顿道地铁站(Shenton Way MRT)和乌节地铁站(Orchard MRT)。只需乘搭2个地铁站就能抵达滨海湾地铁转换站(Marina Bay MRT)。
| 驾车出行
对于驾车人士,想到中央金融区(CBD)只需要10分钟车程。到达新加坡最大的购物区,乌节路,也只需15分钟车程。附近的加冷-巴耶利峇高速公路 (KPE)和东海岸公园大道(ECP)也为驾车人士带来好些便利。
3分钟到达地铁站;4分钟到达海滨公园;
5分钟到购物中心;10分钟到达金融区。

超豪华公寓设施,600米空中走廊,面朝大海
Amber Park (安珀园)拥有三栋楼体,总面积约19850平方米,592 套私宅单位。楼盘设有36个不同的设施供居民使用。包括休闲游泳池,泻湖游泳池,水疗池,烧烤亭,宁静和花园休息室等。

值得一提的是顶层的600米环绕步道。茶余饭后,您可以去往22层顶楼,眺望海景“空间漫步“;若您酷爱运动,可以在顶楼凉爽的海风中“慢跑“;面朝大海的Sky Pool,Sky Gym,在落日的余晖中舒展身心…… Amber Park (安珀园)带给您的是居住的超凡体验。

您的后花园:东海岸公园 East Coast Park
从安珀园步行5分钟即可到达著名的东海岸公园,这里是新加坡最好玩的海滩之一,鲜少有聚集的游客,完全是为周末慢生活而生的一座海边公园。公园里有长达15公里的自行车道、众多户外烧烤点,开阔的草地使这座海边公园成为遛狗的最佳场所。

更惊喜的是,东海岸公园今天马上要迎来一次升级,将会建成更多设施,公园里的各处细节也会更加丰富,从设计图来看,变化非常大,很难不令人期待!


附近名校云集
| 小学
Tanjong Katong Primary School – 0.6km
Haig Girls’ Primary School – 1.3km
Tao Nan Primary School – 1.4km
CHIJ (Katong) Primary School – 1.5km
Kong Hwa Primary School – 1.8km
| 中学
Tanjong Katong Girls’ School (U/C) – 0.9km
Tanjong Katong Secondary School – 1.0km
Broadrick Secondary School – 1.6km
Dunman High School – 1.9km
绝佳入场价格: 同户型 "新盘" 与附近“二手盘“相比,价格竟然更有优势!
1房价格与同区域二手房对比:
二手房1房的售价最高为$1.180M
Amber Park(安珀园)1房的售价为$1.088M+

2房价格与同区域二手房对比:
二手房2房的售价为$1.818 - 2.924M
Amber Park(安珀园)2房+书房的售价仅仅为 $1.608M !

由此可见,相同户型,"新盘的价格" 竟然还稍稍低于"二手盘的价格" - 新加坡的新盘开盘时价格最优! Amber Park (安珀园)堪称东部绝版的永久产权大楼盘。所以,把我开盘第一天,不要错过"进场"的好时机!
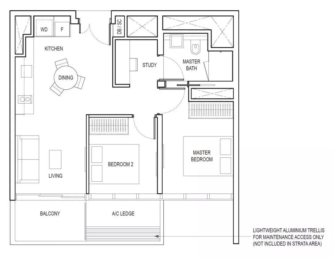
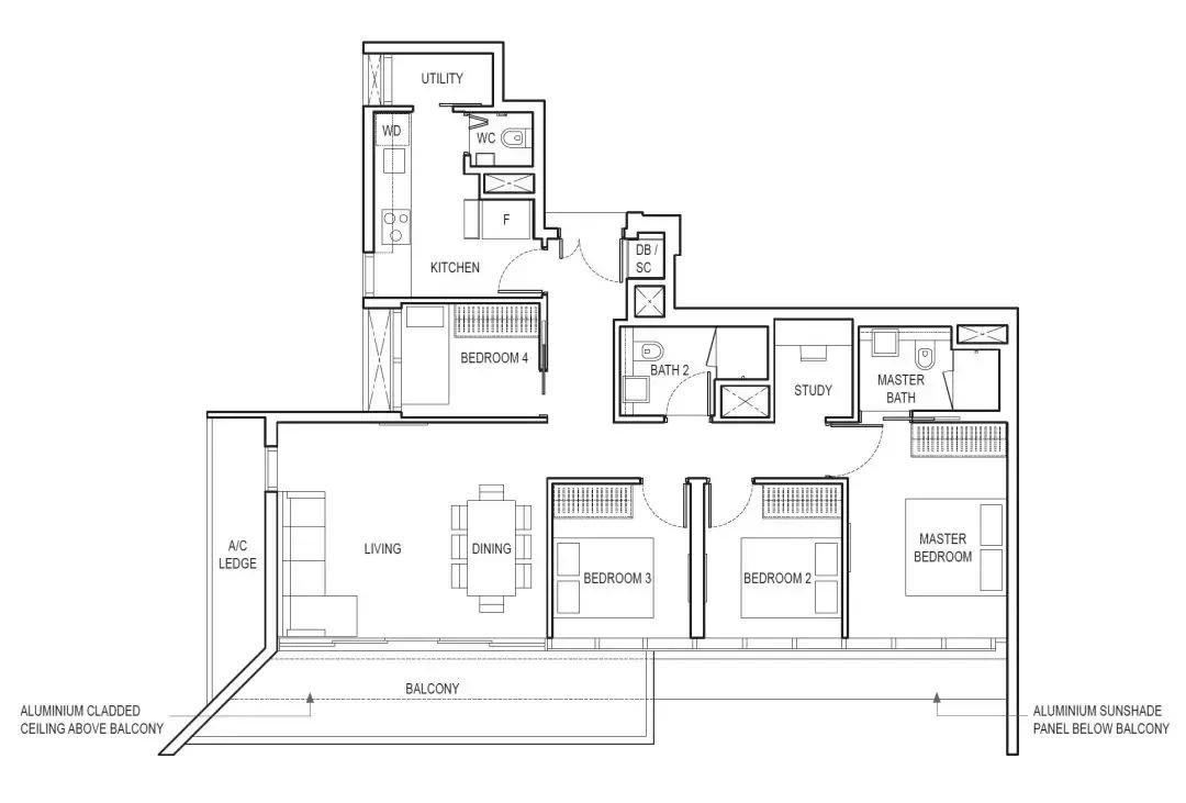
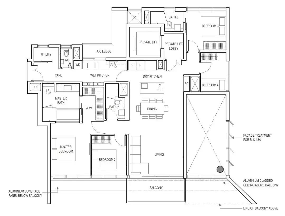
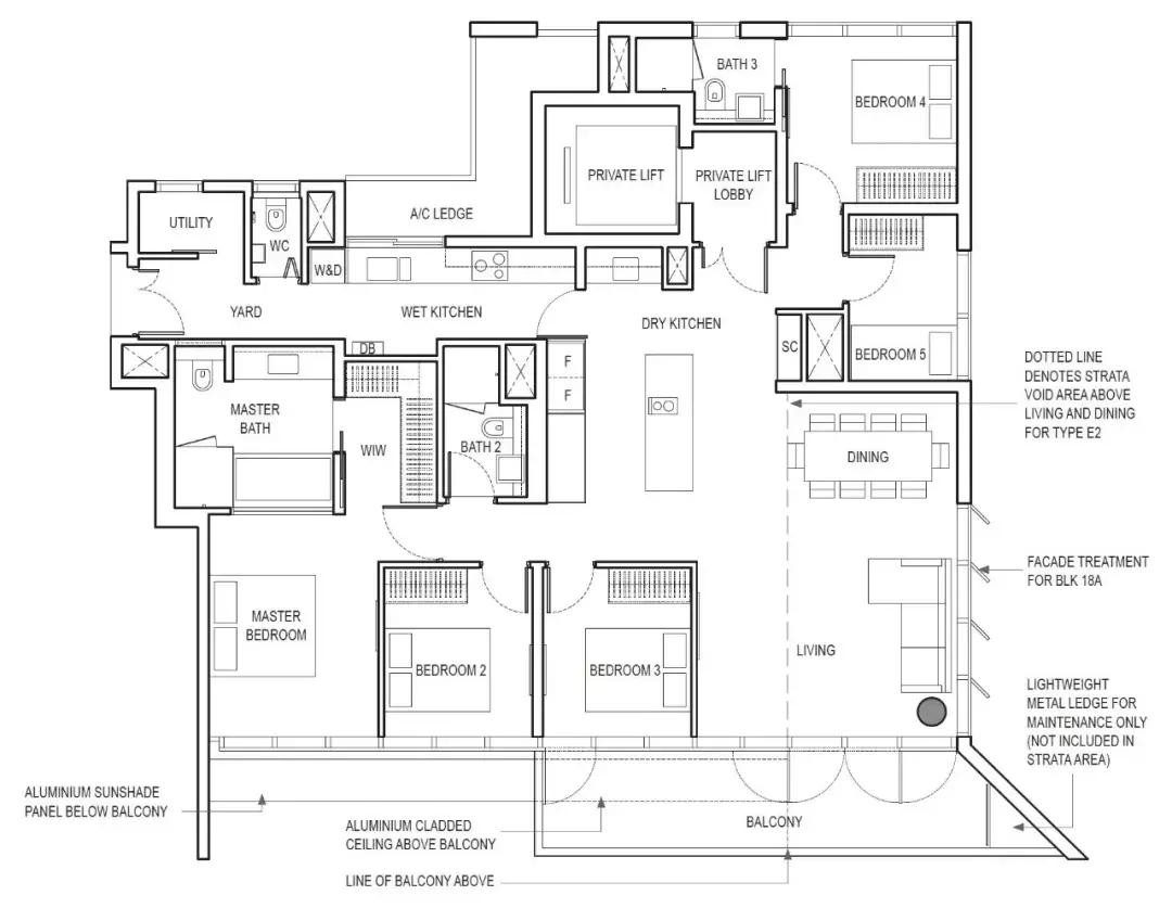
户型介绍
紧凑型小户型,适合投资
1房+书房
A1 面积:463sqf

2房+书房
B2 面积:678sqf / 有惊喜价格!

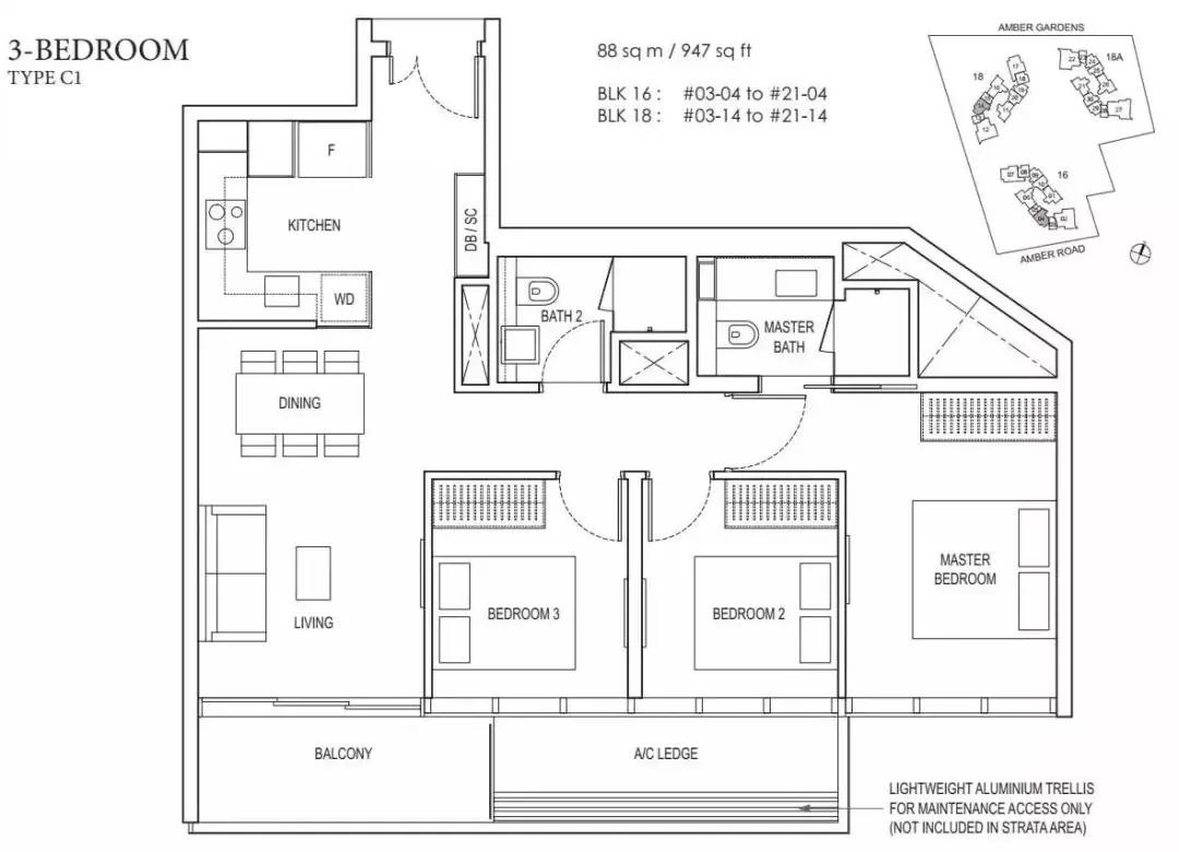
3房
C1 面积:947sqf

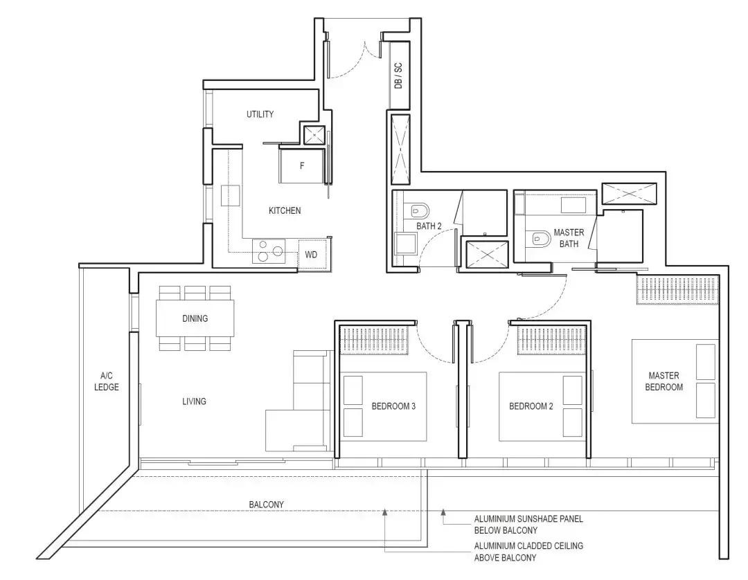
3房
C2A C2B 面积:1109sqf

4房
D1 面积:1572sqf

4房+书房
D4 面积:1302sqf / 有惊喜价格!

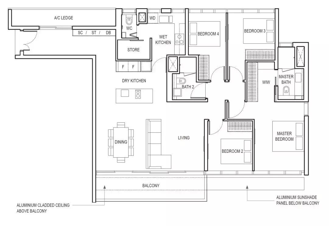
特别推荐:宽敞大气,自住户型
4房
D2 面积:1582sqf 私人电梯 / 预计开盘价格: 3.668M+

5房
E2 面积:2142sqf / 预计开盘价格: 4.98M+

倒地有哪几款适合投资的爆款?
那些户型住的最舒服,而且信价比高?
请加微信KevinFengSG联络作者,让专家来为你分析合理的入场和出场价格,以及可以达到的投资回报!
增值潜力解析
1 新盘 PK 二手盘
很多数据研究发现,新加坡私人公寓从开盘预售到3-4年建好后交房,价格一般会有很大的增长;反而交房后成为二手房,价格增长慢慢停滞。以下列两个项目为例:
| Silversea的价格走势

| The Shore Residence的价格走势

为什么会这样呢?
开发商开盘需要在短期销售大量房源,通常都会以最优惠的价格吸引首批买家。在消化库存的过程中,每次达到一个关键的销售目标,就会慢慢涨价。统计发现,新加坡新楼盘,开盘到交房的这3-4年时间,通常会有30%~40%的增幅。所以开盘投资,交房时直接新房卖掉套现,是一个成功率相对很高的投资策略!(当然也有特例和新盘陷进)新盘的"估值"不受银行限制,一般买主都可以按照开发商的价格贷款到75%。 而二手房的估值往往受到一些低单价户型的影响,导致买主也不愿意出合理的价格,价格常常停滞。
2 大盘 vs 小盘,哪个增值潜力大?
"大楼盘"与"小楼盘"相比,占地面积比较大,有丰富公寓设施的大楼盘,一般增值潜力大于独栋的小楼盘!大楼盘在转售市场更受欢迎,因为居住环境好,设施齐全,附加价值高
2004至2019年
以下三个大楼盘,价格走势增幅迅猛;
均价由S$800/平方尺 增至 S$1900/平方尺。

2009至2019年
以下三个小楼盘,价格走势增幅缓慢。

3 “永久大盘“ 极其稀有,机不可失!
新加坡寸土寸金,永久地契的楼盘在日后开发中将是少之又少,地处新加坡东部的永久大盘更加稀缺。新开盘项目:Amber Park (安珀园),作为永久地契的大盘 ,增值潜能大,被认为是Amber Road区最后一块拥有超过200,000平方英尺土地面积的永久产权地之一,机不可失!
五月
盛大开盘
想要成为VIP贵宾抢先看房?
自住哪个户型最适合您?
投资如何挑增长潜力最大的户型?
出场策略是什么?
请和我联络预约VVIP样版房参观,
或加我微信: KevinFengSG 获取新加坡地产投资白皮书。
或登记参加Kevin的演讲,
新加坡眼,带你看新加坡。更多内容请关注微信号kanxinjiapo
-
- 李连杰为什么有底气要价一个亿?王晶给出了这样的回答
-
2025-07-11 14:30:58
-
- 西安十大必吃美食
-
2025-07-11 14:28:44
-
- 曾经的“澳门”教父,如今归于平静
-
2025-07-11 14:26:29
-
- 赵薇出大事了,再曝猛料!这只是刚刚开始
-
2025-07-11 14:24:13
-
- 三八妇乐再曝旗下子公司华泰药业香港上市为噱头收割会员涉传骗局
-
2025-07-11 14:21:59
-
- 克格勃的温柔乡为何如此诱人?性间谍燕子与乌鸦到底有多厉害?
-
2025-07-11 14:19:44
-
- 9岁成孤儿,53岁至今未婚,助养280个孩子,做慈善做到捐空家底
-
2025-07-11 14:17:29
-
- 事实证明,63岁久居异乡无儿无女的梁朝伟,早已踏上了另一种人生
-
2025-07-11 14:15:14
-
- 士官转文职,期待的战友关注下政策解读
-
2025-07-11 14:12:59
-
- 平成物语①|是结束也是开始:日本平成时代倒计时之际的回望
-
2025-07-11 14:10:44
-
- 推荐 16 本西游文小说、喜欢的可以进来看看
-
2025-07-11 14:08:29
-
- 原省委副书记“仇和”从政四十年的起起落落,结果倒在了这里?
-
2025-07-11 14:06:14
-
- 曾经的央视最美主持,却在拍戏时怀孕,今孩子已16岁生父依然成谜
-
2025-07-11 14:03:59
-
- 非主流鼻祖程琳:曾经制霸QQ空间,现在无人问津,她经历了什么?
-
2025-07-11 14:01:44
-
- 河北黑老大吴迪:称霸石家庄20年,疯狂敛财6.5亿,最终下场如何
-
2025-07-11 13:59:29
-
- 小说:穿越成清朝小玉儿,她没嫁多尔衮转而拥抱皇太极,大获宠爱
-
2025-07-11 13:57:14
-
- 小白只要分六步就可以写好一部小说大纲!
-
2025-07-11 05:11:05
-
- 中国电建年报:营收6084亿,子公司净利润排行榜来袭!
-
2025-07-11 05:08:50
-
- 二战纳粹德国党卫军军衔图解
-
2025-07-11 05:06:35
-
- 乔峰只有三十一岁,为何功力不比萧远山慕容博差,看看他师父是谁
-
2025-07-11 05:04:20



苍月奥特曼:来自宇宙的战士
字节跳动市值多少亿(字节跳动高估值的原因)