旗杆标准,国旗杆高度标准与楼高的比例?
旗杆标准,国旗杆高度标准与楼高的比例?
国旗杆高度标准与楼高的比例
国旗杆是专门用作升降国旗所使用的旗杆。
只能与国旗配合使用,象征着国家的标志。中国第一根国旗杆是1949年开国大典时用的,高度为22米,1991年5月1日,我国重新修建了国旗杆,旗杆总高度为32.6米。因此国旗杆的高度没有标准。

国旗旗杆标准高度是多少
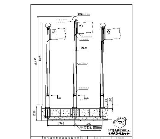
中国国旗旗杆标准高度是12~28.8米。
【常见的国旗旗杆高度】
1.如果是中国企业旗杆一般为3支或5支,旗杆中间为中国国旗,两边为企业旗,企业旗一般比国旗旗杆矮半面国旗,中间国旗最高不得超过30米。
2. 如果是中外合资企业,中国旗应与外国旗同高,但在实际施工时中国旗旗杆可略高于外国旗杆一般为50mm。
3. 政府及军队一般用一支国旗旗杆,高度也不能超过30米,一般高度为12米~28.8米。
4. 广场旗杆一般高度为18米~29.8米。
5. 体育馆旗杆一般高度为9米~15米。
6. 酒店旗杆既要豪华又要显得庄重一般高度为12米~19.8米之间,一般用5支,中间为中国国旗,两边为其它国家国旗或酒店自己旗帜。
7. 学校旗杆一般采用一支旗杆,升中国国旗,高度为12米~15.8米之间。
【旗台】
旗台颜色一般采用白色,黑色,印度红,三种颜色,形状可由设计师设计,但旗杆的预埋 件要预先埋好并且应考虑到旗杆底座与旗之前有120~200mm高的加强筋板,此部分应埋在旗台下,否则如加强筋板凸在花岗若平面之上就必须加装不锈钢装饰罩
8. 工厂旗杆一般采用3支旗杆,但如果是中外合资或外资工厂也可用5支或更多,高度一般为8米~15.8米,如厂房或办公楼为多层的可选用更高一些。

天安国前旗杆高度标准
1949年,天安门广场国旗旗杆的高度是22.5米;1991年,国旗旗杆换成高度为32.6米,一直用到现在。
旗杆的长度是有标准的,您知道吗
正常的旗杆高度在12到30米.12米是一个下限,作用是能够在缓慢升旗时完整播放一首国歌。
现在旗杆的高度一般分为14米、16米和18米,旗杆的高度和建筑物的高度一般以视觉合适为佳,如5层楼(16.5米-16米,层高在3.5米-3.3米)楼根之旗杆距离在15-18米时,旗杆以16米为宜;旗帜分为0号、一号、二号、三号,面积不一样,一般情况下使用1号和2号旗帜,多数使用2号旗帜;目前国内企业一般为三根旗杆,三根旗杆高度不一样,主旗杆(升国旗)16米-18米、另外两根低于主旗杆200毫米。
三根旗杆标准间距
1、8—10米高旗杆,间距1—1.5米。
2、11—13米高旗杆,间距1.2—1.8米。
3、14–16米高旗杆,间距1.2—2.2米。
4、17–19米高旗杆,间距1.5—2.5米。
5、20–25米高旗杆,间距2.2—3.5米。
旗杆是一种用于各种矿厂、企事业单位、生活小区、车站、海关码头、学校、体育场馆、高级酒店、城市广场等等做为一种标识而树立的。
旗杆的标准高度是多少米
1、国旗使用的旗杆标准高度是15米以上,规格为288cm×192cm。
2、国旗使用的旗杆标准高度是12米以上,规格为240cm×160cm。
3、国旗使用的旗杆标准高度是9米以上,规格为192cm×128cm。
4、国旗使用的旗杆标准高度是6米以上,规格为144cm×96cm。
5、国旗使用的旗杆标准高度是3米以上,规格为96cm×64cm。
旗杆是一种用于各种矿厂、企事业单位、生活小区、车站、海关码头、学校、体育场馆、高级酒店、城市广场等等做为一种标识而树立,旗杆为分专业旗杆 注水旗杆、刀旗旗杆、不锈钢电动旗杆、不锈钢锥形旗杆、变径旗杆、室内旗杆、广场旗杆、房顶旗杆等。
-
- 日本奥运会2025开幕时间几月几号,东京运会2025年几月几号开?
-
2025-11-11 23:39:55
-
- 教你让车窗不再起雾的小窍门 让你安全驾驶平安到达目的地
-
2025-11-11 23:37:40
-
- 前男友有了新欢还能挽回吗,前男友有新欢并不可怕
-
2025-11-11 23:35:25
-
- 来大姨妈怎么缓解疼痛?7个妙招,帮你有效缓解
-
2025-11-11 23:33:10
-
- 上海唐人影视有限公司(唐人影视是如何一步一步衰落)
-
2025-11-11 23:30:55
-
- 六月七月开什么花,什么花是六七月开的
-
2025-11-11 23:28:41
-
- 隔离开关的工作原理-隔离开关和断路器的区别
-
2025-11-11 23:26:26
-
- 女朋友爱爱没感觉怎么解决 情侣如何做ai有感觉
-
2025-11-11 23:24:11
-
- 发乎情止乎礼,发乎情止乎礼有多少人做到?
-
2025-11-11 23:21:56
-
- 到非洲旅游你需要注意的禁忌
-
2025-11-11 23:19:41
-
- 花甲是多少岁,花甲多少岁是什么意思?
-
2025-11-11 21:14:30
-
- 鸿祯的寓意,聿遵乾享,式降鸿祯这句诗词是什么意思?
-
2025-11-11 21:12:15
-
- 钢笔画入门基本步骤(零基础钢笔画教程)
-
2025-11-11 21:10:00
-
- 灌木的意思,地被灌木p15的意思?
-
2025-11-11 21:07:46
-
- 河蚌如何做得好吃(河蚌最好吃的做法)
-
2025-11-11 21:05:31
-
- 一公分是多少厘米,18公分是多少厘米?
-
2025-11-11 21:03:16
-
- 一拳超人原作第128话:多只龙级怪人同时现身,水子和布鲁参战
-
2025-11-11 21:01:01
-
- 新买的凉鞋磨脚怎么办
-
2025-11-11 20:58:46
-
- dnf40级人偶哪个刷图厉害(盘点外挂般的刷图人偶 一位曾是最强气功 而她却吊
-
2025-11-11 20:56:31
-
- 白兰花花语,白色兰花花语是什么意思?
-
2025-11-11 20:54:16



抖音牛逼姐和她男朋友视频什么瓜抖音nb姐吃瓜视频事件完整版
刚开荤的男生是不是收不住?亲身经历